Search

Leave a Message

Thank you for your message. We will be in touch with you shortly.

Explore Our Properties

Property Description

Under Construction. The builder is offering buyers up to $20,000 towards closing costs with the use of a preferred lender and title company. At 6,200 acres, Angeline is truly a City in the Making. Among 3,600 acres of green space, plans include Pasco County's first community farm, a future 130-acre regional park, an extensive trail network of close to 100 miles combined, a future Town Center, and a future 5-acre Lagoon. The Angeline Academy of Innovation STEM school is newly open, providing a school right within the neighborhood. Angeline is the home of a state-of-the-art global innovation district focused on life sciences as developed by the world-renowned H. Lee Moffitt Cancer Center. With its first entrance located on SR-52, Angeline will showcase new homes in Land O' Lakes. Additional road connections to nearby Suncoast Parkway via Ridge Road make commuting a snap. This master-planned community focuses on concepts of health and wellness, fun and adventure, conservation, education, and technology. As it continues to develop, you won't need to leave your community to work, learn, dine, and find entertainment; it will all be just minutes from your doorstep! Each home is constructed with concrete block on 1st and 2nd stories, comes equipped with D.R. Horton's Smart Home System, and is backed by America's #1 Builder since 2002.
Other inventory options may be available in this community. Please reach out for list of availability
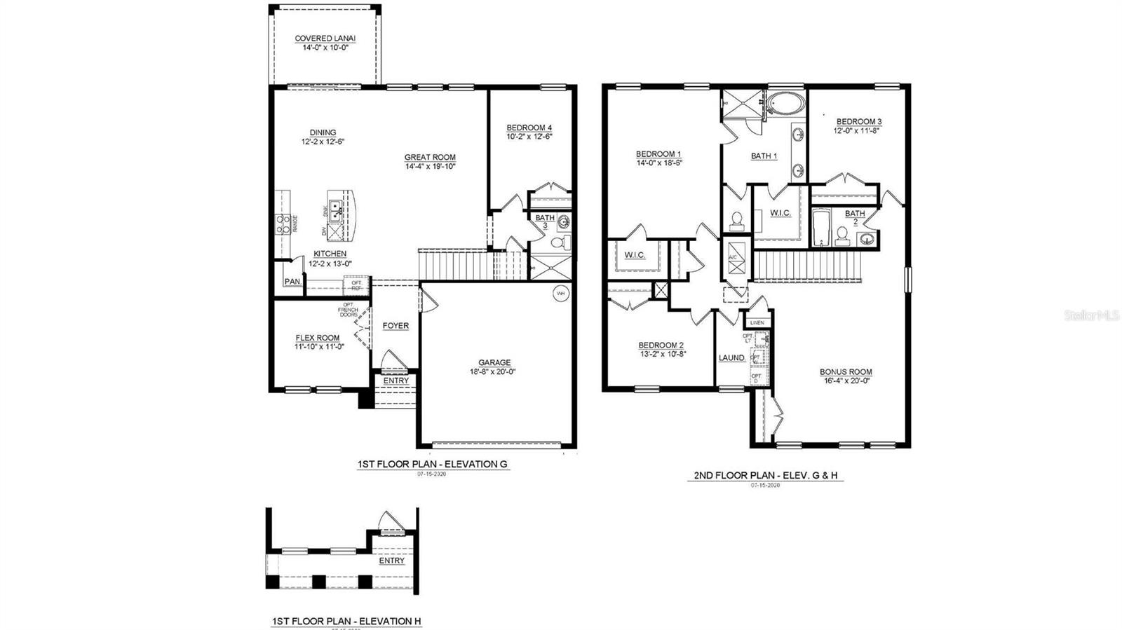
Pictures, photographs, colors, features, and sizes are for illustration purposes only and will vary from the homes as built. Home and community information, including pricing, included features, terms, availability, and amenities, are subject to change and prior sale at any time without notice or obligation. Materials may vary based on availability. D.R. Horton Reserves all Rights.

Overview

Property Status
Sold
Lot Size
6,000 Sq.Ft.
MLS ID
TB8326534
Property Type
Residential
Year Built
2025

Features & Amenities

Total Area
3,316 Sq.Ft.
Stories
2
Garage Spaces
2.0
Water Source
Public
Utilites
Public, Underground Utilities
Roof
Shingle
Lot Features
Sidewalk, Paved
Heat Type
Central
Air Conditioning
Central Air
Laundry Room
Laundry Room
Appliances
Dishwasher, Dryer, Microwave, Range, Refrigerator, Washer
Other Interior Features
Open Floorplan
Sewer
Public Sewer
Substructure
Slab
Elementary School
Mary Giella Elementary-PO
Middle School
Hudson Middle-PO
High School
Hudson High-PO
Sales Price
$493,490
HOA
$109/mo
Zoning
MPUD

Downloads

10453 FARM HILL AVE

Schedule a Tour

We would love to help you see this beautiful home! As a full-service brokerage, we can help you tour. Please submit an offer, and answer questions about the buying process.

Thank you

for your interest in 10453 FARM HILL AVE, LAND O LAKES, FL 34638

10453 FARM HILL AVE
Navigate

I'm Interested In

10453 FARM HILL AVE

or
  • CallJim Ward

    License #SL597346

    (813) 368-7911
  • Browse Our

    Featured Properties

    Browse our exclusive listings and find your next dream home today!

    • 21827 SOUTHERN CHARM DR For Sale

      $729,000

      21827 SOUTHERN CHARM DR, LAND O LAKES, FL 34637

      • 4 Beds
      • 4 Baths
      • 3,110 Sq.Ft.
    • 3721 MONARCH DR For Sale

      $675,000

      3721 MONARCH DR, TAMPA, FL 33618

      • 4 Beds
      • 3 Baths
      • 2,574 Sq.Ft.
    • 1402 PROVINCETOWN CIR For Sale

      $547,500

      1402 PROVINCETOWN CIR, LUTZ, FL 33549

      • 4 Beds
      • 3 Baths
      • 2,444 Sq.Ft.
    • 13312 LAKE GEORGE LN For Sale

      $479,900

      13312 LAKE GEORGE LN, TAMPA, FL 33618

      • 4 Beds
      • 4 Baths
      • 2,027 Sq.Ft.
    • 4005 DELLBROOK DR Pending

      $460,000

      4005 DELLBROOK DR, TAMPA, FL 33624

      • 3 Beds
      • 3 Baths
      • 1,598 Sq.Ft.
    • 8958 110TH ST Pending

      $439,900

      8958 110TH ST, SEMINOLE, FL 33772

      • 3 Beds
      • 2 Baths
      • 1,164 Sq.Ft.
    • 7325 SHERMAN HILLS BLVD For Sale

      $320,000

      7325 SHERMAN HILLS BLVD, BROOKSVILLE, FL 34602

      • 4 Beds
      • 2 Baths
      • 1,799 Sq.Ft.
    View All

    Follow Us On Instagram